大プリア・カン(コンポン・スヴァイ)
大プリア・カン遺跡群は、王都アンコールの東門からタ・プロムを通り、ベン・メリアを経て東に向かう王道上に位置しています。
シェムリアップから東へ直線距離で約95kmの所にあります。
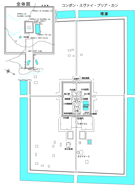
周辺には、中型寺院プリア・ダムレイ、プレア・トコル、プリア・ストゥンやベン・スレなどがあります。
内周壁の中に入ると、南の窓間壁で碑文が見つかった碑文祠堂と、ダルマサーラがあります。
アンコールにあるプリア・カンの碑文に、ダルマサーラは全121棟あったと記されています。
しかし、大プリア・カン遺跡にあるダルマサーラは、このリストに含まれていないことから、1192年以降に建てられたと言われています。
建立年代: | 12世紀 |
---|---|
建立王: | ダラニンドラヴァルマンⅡ世 |
ジャヤヴァルマンⅦ世 増築 | |
宗教: | ヒンドゥー教及び大乗仏教 |
規模等: | 平地型寺院、5km x 5km |
3重の土手 | |
2.8km x 0.75kmのバライ | |
外回廊 0.85km x 1.3km | |
内回廊 0.48km x 0.48km | |
東西南北にそれぞれ塔門 | |
遺跡の意味: | 聖なる剣(マンゴーの河岸) |
見所: | 浮彫などが盗掘された痛々しい跡 |

画像をクリックすると、大きな画像が表示されます。












































